Behind the Scenes on a Luxury Bathroom Remodel in Redding

a modern bathroom update with white tile work and blue and gold accents in a Redding home

This project brought together careful planning, refined materials, and close collaboration to create a bathroom that feels both elevated and highly functional. Working alongside designer Sandy Bade of Red Door Redesign, the goal was to reimagine the space with improved flow, accessibility, and a calm, modern aesthetic that would stand the test of time.

A Complete Transformation of the Shower and Tub Area

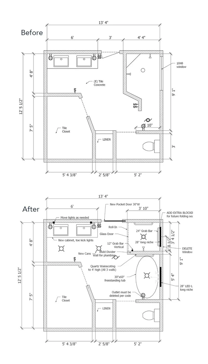
The bathroom remodel began with selective demolition that allowed the existing main bathroom flooring to remain intact while fully reworking the shower area. Walls were removed to open the space, the original vanity and window were taken out, and the shower footprint was redesigned to support a roll-in layout. Concrete was cut to accommodate the new drain placement and deck-mounted plumbing for the freestanding tub, creating a more accessible and intentional layout.

Framing updates made room for two elongated niches, one within the shower and one behind the tub, while insulation and structural adjustments ensured long-term performance. These changes set the foundation for a bathroom that feels open, purposeful, and cohesive.

Statement Stone and Tile Selections

Cambria Portrush Quartz was used throughout the space to create visual continuity and durability. One-centimeter slabs wrap the shower walls and tub wainscote up to the ceiling, while a two-centimeter slab was fabricated for the vanity with a laminated edge and integrated backsplash. The quartz brings subtle movement and a clean, refined look that complements the surrounding finishes without overwhelming the space.

Tile details add texture and contrast in key areas. The shower floor features Atlas Concorde Outland Pure Multi Hex mosaic, providing both visual interest and slip resistance. Original Style Pallene Gold mixed penny round tile was selected for the back of the niches, adding warmth and a soft metallic accent.

Lighting, Fixtures, and Finishing Touches

Electrical upgrades included new LED recessed lighting, a chandelier above the tub, and wiring for toe-kick lighting beneath the vanity, adding depth and ambiance. A Panasonic exhaust fan was relocated to improve ventilation, and outlets and switches were adjusted to suit the new layout.

Plumbing work supported the redesigned shower and tub configuration, including a deck-mounted tub filler, diverter valve, and hookups for dual vanity sinks. Customer-provided fixtures were carefully integrated to ensure both performance and visual consistency.

A heavy-duty glass enclosure with a brushed gold finish defines the shower while keeping the space light and open. Grab bars were installed for added safety, and custom slab trays were fabricated for functional storage within the shower.

If you are planning a bathroom remodel and want materials, layout, and craftsmanship to work together from start to finish, Ceramic Designs is here to help bring that vision to life.

Previous
Previous

Redding Kitchen Remodel with Custom Granite Island and Quartz Countertops

Next
Next

Mt. Shasta Cottage Getaway Renovation